Вставка гибкая для канальных вентиляторов и систем вентиляции
Вставки гибкие типа ВГ предназначены для предотвращения передачи вибрации от вентилятора к воздуховоду и применяются в вентиляционных системах, перемещающих воздух в интервалах температур от -40°С до +80°С.
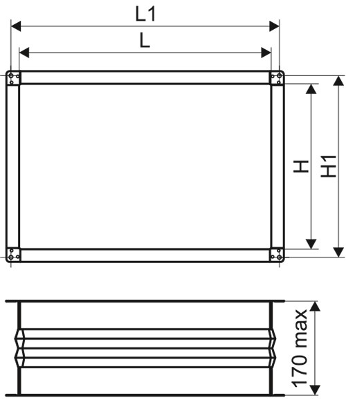
Корпус вставки изготовлен из оцинкованной стали, в середине закреплена тканевая лента, обеспечивающая герметичность канала. Конструкция вставки позволяет крепить её к фланцам вентиляторов с помощью болтов или реечного соединения.
Габаритные и присоединительные размеры для канальных вентиляторов, систем вентиляции и кондиционирования прямоугольного сечения

|
Типоразмер вентилятора |
Модель гибкой вставки |
L |
H |
L1 |
H1 |
Фланец из шины |
|
40-20 |
ВГ 40-20 |
400 |
200 |
420 |
220 |
20 |
|
50-25 |
ВГ 50-25 |
500 |
250 |
520 |
270 |
20 |
|
50-30 |
ВГ 50-30 |
500 |
300 |
520 |
320 |
20 |
|
60-25 |
ВГ 60-25 |
600 |
250 |
620 |
270 |
20 |
|
60-30 |
ВГ 60-30 |
600 |
300 |
620 |
320 |
20 |
|
60-35 |
ВГ 60-35 |
600 |
350 |
620 |
370 |
20 |
|
70-40 |
ВГ 70-40 |
700 |
400 |
720 |
420 |
20 |
|
80-50 |
ВГ 80-50 |
800 |
500 |
820 |
520 |
20 |
|
90-50 |
ВГ 90-50 |
900 |
500 |
920 |
520 |
20 |
|
100-50 |
ВГ 100-50 |
1000 |
500 |
1020 |
520 |
20 |
Габаритные и присоединительные размеры для канальных вентиляторов, систем вентиляции и кондиционирования круглого сечения

|
Модель гибкой вставки |
D |
D1 |
Фланец из полосы |
|
ВГ-D180/200 |
180 |
200 |
25 |
|
ВГ-D200/235 |
200 |
235 |
25 |
|
ВГ-D224/253 |
224 |
253 |
25 |
|
ВГ-D250/286 |
250 |
286 |
25 |
|
ВГ-D280/309 |
280 |
309 |
25 |
|
ВГ-D315/349 |
315 |
349 |
25 |
|
ВГ-D355/384 |
355 |
384 |
25 |
|
ВГ-D400/434 |
400 |
434 |
25 |
|
ВГ-D450/479 |
450 |
479 |
25 |
|
ВГ-D500/534 |
500 |
534 |
25 |
|
ВГ-D560/589 |
560 |
589 |
25 |
|
ВГ-D630/665 |
630 |
665 |
25 |
|
ВГ-D710/739 |
710 |
739 |
25 |
|
ВГ-D800/829 |
800 |
829 |
25 |
|
ВГ-D900/938 |
900 |
938 |
25 |
|
ВГ-D1000/1030 |
1000 |
1030 |
25 |
|
ВГ-D1120/1158 |
1120 |
1158 |
25 |
|
ВГ-D1250/1280 |
1250 |
1280 |
25 |
МАРКИРОВКА:
Вставка гибкая ВГ 40-20 ш20-ш20
где: ВГ – вставка гибкая прямоугольная для канальных вентиляторов;
40-20 – проходное сечение гибкой вставки (типоразмер прямоугольного вентилятора (LxH), см);
ш20-ш20 – тип соединения гибкой вставки: ш20-ш20 – на фланцах из шины 20 мм.
Вставка гибкая ВГ-D500/534 фл25-нип
где: ВГ – вставка гибкая круглая для канальных вентиляторов;
500/534 – диаметры гибкой вставки, соответственно, внутренний и по отверстиям, мм;
фл25-нип – тип соединения гибкой вставки: фл25-нип - фланец из уголка 25мм-нипель;
фл25-фл25 - на фланцах из уголка 25мм; нип-нип - соединение нипель-нипель.
Вставка гибкая ВГ-D500 нип-нип
где: ВГ – вставка гибкая круглая для канальных вентиляторов;
D500 – внутренний диаметр гибкой вставки, мм;
нип-нип – тип соединения гибкой вставки:
нип-нип - нипель-нипель; фл25-фл25 - на фланцах из уголка 25мм.
По отдельной заявке возможно изготовление гибких вставок нестандартных размеров, например, для для обеспечения герметичного гибкого соединения воздуховодов. Для нестандартных гибких вставок размеры проходного сечения (для прямоугольных вставок) или диаметр (для круглых вставок) указываются в миллиметрах.
Минимальные и максимальные размеры нестандартных гибких вставок:
- прямоугольные: минимум 140х140 мм, максимум 1500х1500 мм;
- круглые: минимальный диаметр 180 мм, максимальный диаметр 1250 мм.
МАРКИРОВКА:
Вставка гибкая ВГ 655*425 ш20-ш20
где: ВГ – вставка гибкая прямоугольная;
655*425 – проходное сечение гибкой вставки (LxH), мм;
ш20-ш20 – тип соединения гибкой вставки:
ш20-ш20 - на фланцах из шины 20 мм, ш30-ш30 - на фланцах из шины 30 мм.
Вставка гибкая ВГ-D425 фл25-нип
где: ВГ – вставка гибкая круглая;
D425 – внутренний диаметр гибкой вставки, мм;
фл25-нип – тип соединения гибкой вставки: фл25-нип - фланец из уголка 25мм-нипель;
фл25-фл25 - на фланцах из уголка 25мм; нип-нип - соединение нипель-нипель.
Вставка гибкая ВГ-D755 нип-нип
где: ВГ – вставка гибкая круглая;
D755 – внутренний диаметр гибкой вставки, мм;
нип-нип – тип соединения гибкой вставки:
нип-нип - нипель-нипель; фл25-фл25 - на фланцах из уголка 25мм.
Не представленные в наличии модели доступны к поставке под заказ
Всю необходимую информацию также можно получить по телефону «горячей линии»
+ 7 800 200 93 96или по телефону
+7 800 505 08 67 получить консультацию