Вентилятор канальный прямоугольный взрывозащищенный VCN-Ex1
Описание
- Вентиляторы канальные прямоугольные VCN-Ex1 предназначены для применения в потенциально взрывоопасной газовой среде категорий IIА, IIВ, IIС (кроме взрывоопасных смесей с воздухом: коксового газа категории IIВ группы Т1; окиси пропилена, окиси этилена, формальдегида, этилтрихлорэтилена, этилена категории IIВ группы Т2; винилтрихлорсилена, этилхлорсилена категории IIB группы Т3)
- Монтаж в любом положении
Конструктив
- Корпус из оцинкованной стали
- Свободное колесо «РЦ» с загнутыми назад лопатками
Двигатель
- Трехфазный взрывозащищенный электродвигатель
- Степень защиты электродвигателя IP 54
Условия эксплуатации
- Климатическое исполнение по ГОСТ 15150: У3 (для эксплуатации в помещениях).
- Допускается эксплуатация в У2 (под навесом) при условии защиты вентилятора от атмосферных осадков и прямого попадания солнечных лучей
- Взрывозащищенное исполнение - Ex1
- Температура окружающей среды от -45°С до +40°С
- Температура перемещаемой среды от -45°С до +80°С
- Перемещаемая среда не должна содержать:
- взрывоопасных веществ под избыточным давлением или нагревающихся выше температуры их самовоспламенения
- пары и газы, вызывающие ускоренную коррозию оцинкованной стали и латуни, агрессивные к покрытиям и изоляции выше агрессивности воздуха
- Вентиляторы подгруппы IIC не предназначены для применения во взрывоопасных газовых средах, содержащих ацетилен
Дополнительная комплектация*

1 - Вставка гибкая прямоугольная ВГП
2 - Шпилька
3 - Траверса монтажная
4 - Крепежные изделия
* Дополнительные комплектующие в комплект поставки не входят.
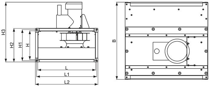
Габаритные и присоединительные размеры, мм

|
Наименование |
L |
H |
L1 |
H1 |
L2 |
H2 |
B |
H3 |
|
VCN-40-20/18-Ex1/IIB-PЦ-0,37/3000/220-380 |
400 |
200 |
421 |
221 |
440 |
240 |
457 |
468 |
|
VCN-40-20/20-Ex1/IIB-PЦ-0,37/3000/220-380 |
400 |
200 |
421 |
221 |
440 |
240 |
457 |
468 |
|
VCN-50-25/22-Ex1/IIB-PЦ-0,37/3000/220-380 |
500 |
250 |
521 |
271 |
540 |
290 |
507 |
518 |
|
VCN-50-25/25-Ex1/IIB-PЦ-0,55/3000/220-380 |
500 |
250 |
521 |
271 |
540 |
290 |
507 |
518 |
|
VCN-50-25/25-Ex1/IIB-PЦ-0,37/1500/220-380 |
500 |
250 |
521 |
271 |
540 |
290 |
507 |
518 |
|
VCN-50-30/28-Ex1/IIB-PЦ-1,1/3000/220-380 |
500 |
300 |
521 |
321 |
540 |
340 |
607 |
573 |
|
VCN-50-30/28-Ex1/IIB-PЦ-0,25/1500/220-380 |
500 |
300 |
521 |
321 |
540 |
340 |
607 |
568 |
|
VCN-50-30/31-Ex1/IIB-PЦ-2,2/3000/220-380 |
500 |
300 |
521 |
321 |
540 |
340 |
607 |
617 |
|
VCN-50-30/31-Ex1/IIB-PЦ-0,25/1500/220-380 |
500 |
300 |
521 |
321 |
540 |
340 |
607 |
568 |
|
VCN-60-35/35-Ex1/IIB-PЦ-3,0/3000/220-380 |
600 |
350 |
621 |
371 |
640 |
390 |
657 |
673 |
|
VCN-60-35/35-Ex1/IIB-PЦ-0,37/1500/220-380 |
600 |
350 |
621 |
371 |
640 |
390 |
657 |
618 |
|
VCN-70-40/40-Ex1/IIB-PЦ-0,75/1500/220-380 |
700 |
400 |
721 |
421 |
740 |
440 |
707 |
673 |
|
VCN-80-50/45-Ex1/IIB-PЦ-1,5/1500/220-380 |
800 |
500 |
821 |
521 |
840 |
540 |
807 |
817 |
|
VCN-80-50/50-Ex1/IIB-PЦ-2,2/1500/220-380 |
800 |
500 |
821 |
521 |
840 |
540 |
857 |
823 |
|
VCN-100-50/56-Ex1/IIB-PЦ-4,0/1500/220-380 |
1000 |
500 |
1021 |
521 |
1040 |
540 |
957 |
888 |
Технические характеристики
|
Наименование |
Мощность кВт |
Ток, А |
Частота вращения, |
Масса, кг |
Общий дБа |
|
|
На входе |
К окружению |
|||||
|
VCN-40-20/18-Ex1/IIB-PЦ-0,37/3000/220-380 |
0,37 |
1,01 |
3000 |
26 |
65 |
75 |
|
VCN-40-20/20-Ex1/IIB-PЦ-0,37/3000/220-380 |
0,37 |
1,01 |
3000 |
26 |
70 |
72 |
|
VCN-50-25/22-Ex1/IIB-PЦ-0,37/3000/220-380 |
0,37 |
1,01 |
3000 |
32 |
74 |
80 |
|
VCN-50-25/25-Ex1/IIB-PЦ-0,55/3000/220-380 |
0,55 |
1,38 |
3000 |
34 |
75 |
81 |
|
VCN-50-25/25-Ex1/IIB-PЦ-0,37/1500/220-380 |
0,37 |
1,12 |
1500 |
33 |
56 |
60 |
|
VCN-50-30/28-Ex1/IIB-PЦ-1,1/3000/220-380 |
1,1 |
2,61 |
3000 |
44 |
61 |
69 |
|
VCN-50-30/28-Ex1/IIB-PЦ-0,25/1500/220-380 |
0,25 |
0,79 |
1500 |
40 |
59 |
63 |
|
VCN-50-30/31-Ex1/IIB-PЦ-2,2/3000/220-380 |
2,2 |
4,85 |
3000 |
57 |
67 |
74 |
|
VCN-50-30/31-Ex1/IIB-PЦ-0,25/1500/220-380 |
0,25 |
0,79 |
1500 |
46 |
66 |
70 |
|
VCN-60-35/35-Ex1/IIB-PЦ-3,0/3000/220-380 |
3,0 |
6,34 |
3000 |
88 |
80 |
87 |
|
VCN-60-35/35-Ex1/IIB-PЦ-0,37/1500/220-380 |
0,37 |
1,12 |
1500 |
59 |
65 |
70 |
|
VCN-70-40/40-Ex1/IIB-PЦ-0,75/1500/220-380 |
0,75 |
2,05 |
1500 |
71 |
71 |
75 |
|
VCN-80-50/45-Ex1/IIB-PЦ-1,5/1500/220-380 |
1,5 |
3,72 |
1500 |
92 |
76 |
80 |
|
VCN-80-50/50-Ex1/IIB-PЦ-2,2/1500/220-380 |
2,2 |
5,1 |
1500 |
103 |
78 |
82 |
|
VCN-100-50/56-Ex1/IIB-PЦ-4,0/1500/220-380 |
4 |
8,8 |
1500 |
133 |
81 |
83 |
Электрическая схема подключения вентиляторов


Не представленные в наличии модели доступны к поставке под заказ
Оповестить о поступлении
Всю необходимую информацию также можно получить по телефону «горячей линии»
+ 7 800 200 93 96или по телефону
+7 800 505 08 67 получить консультацию