Вентилятор радиальный ВР-80-75 специального назначения
Описание
- Классические радиальные вентиляторы низкого давления
Конструктив
- Корпус в виде улитки
- Углы поворота корпуса: 0°, 45°, 90°, 135°, 270°, 315°
- Левое (Л) или правое (Пр) направление вращения рабочего колеса/положение корпуса
- Тип рабочего колеса «РН» с загнутыми назад лопатками
- Материалы корпуса и рабочего колеса зависят от исполнения
Двигатель
- Трехфазный асинхронный электродвигатель
- Степень защиты электродвигателя не ниже IP 54
Условия эксплуатации
- Климатическое исполнение по ГОСТ 15150-69: У2 (для эксплуатации под навесом). Допускается эксплуатация в У1 (на открытом воздухе) при комплектации кожухом электродвигателя или двигателем У1
- Температура окружающей среды от -45°С до +40°С
- Перемещаемая среда не должна содержать:
- взрывоопасных веществ под избыточным давлением или нагревающихся выше температуры их самовоспламенения;
- пары и газы, вызывающие ускоренную коррозию материалов и покрытий указанных исполнений.
- Для изделий из нержавеющей стали (К1) не допускается контакт с сильными восстановителями (щелочи), сильными окислителями (кислоты) и морской водой
- Для изделий из алюминиевых сплавов (В2) не допускается контакт с окислами железа
Таблица исполнений
|
Исполнение |
Температура перемещаемой среды, °С |
Материал |
Назначение |
Маркировка взрывозащиты* |
Группы взрывоопасной среды |
Классы взрывоопасных зон помещения |
|
Теплостойкое Ж2 |
от -45 до +200 |
Оцинкованная/ Углеродистая сталь |
Для перемещения невзрывоопасных газопаровоздушных смесей |
- |
- |
- |
|
Коррозионностойкое теплостойкое К1Ж2 |
от -45 до +200 |
Нержавеющая сталь |
Для перемещения агрессивных невзрывоопасных воздушных смесей |
- |
- |
- |
|
Коррозионностойкое К1 |
от -45 до +80 |
- |
- |
- |
||
|
Взрывозащищенное В1 |
от -45 до +80 |
Углеродистая/ оцинкованная сталь, латунь |
Для перемещения газопаровоздушных смесей IIА и IIВ категорий (кроме взрывоопасных смесей с воздухом: коксового газа IIВТ1; окиси пропилена, окиси этилена, формальдегида, этилтрихлор-этилена, этилена IIВТ2; винил-трихлорсилена, этилхлорсилена IIВТ3) |
1Ех h IIС Т4 Gb Х 1Ех h IIВ Т4 Gb Х |
Т1-Т4 |
1 и 2 |
|
Взрывозащищенное В2 |
от -45 до +80 |
Алюминиевые сплавы |
1Ех h IIС Т4 Gb Х 1Ех h IIВ Т4 Gb Х
|
Т1-Т4 |
1 и 2 |
|
|
Взрывозащищенное теплостойкое В1Ж2 |
от -45 до +200 |
Углеродистая/ оцинкованная сталь, латунь |
1Ех h IIС Т2 Gb Х 1Ех h IIВ Т2 Gb Х |
Т1-Т3 |
1 и 2 |
|
|
Взрывозащищенное коррозионностойкое ВК1 |
от -45 до +80 |
Нержавеющая сталь/ латунь |
1Ех h IIС Т4 Gb Х 1Ех h IIВ Т4 Gb Х |
Т1-Т4 |
1 и 2 |
|
|
Взрывозащищенное коррозионностойкое теплостойкое ВК1Ж2 |
от -45 до +200 |
Нержавеющая сталь/ латунь |
1Ех h IIС Т2 Gb Х 1Ех h IIВ Т2 Gb Х |
Т1-Т3 |
1 и 2 |
* Подгруппа газа IIC или IIB зависит от подгруппы газа применяемого комплектующего оборудования (электродвигателя).
Дополнительная комплектация

1 - Вставка гибкая круглая ВГК-ВР/ВЦ
2 - Вставка гибкая прямоугольная ВГП-ВР/ВЦ
3 - Козырёк защитный Козырек-ВР/ВЦ
4 - Решетка защитная БАСКЕТ-ВР/ВЦ
5 - Кожух ЭД-ВР/ВЦ
6 - Виброизоляторы
* Дополнительные комплектующие в комплект поставки не входят.
Полная информация о вентиляторах ВР-80-75 специального назначения в электронном pdf-каталоге по ссылке во вкладке "Характеристики".
Вентиляторы ВР-80-75 общепромышленного исполнения можно посмотреть в соответствующем разделе.
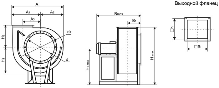
Габаритные и присоединительные размеры

|
№ |
Габарит электродвигателей АИР/АИМЛ* |
A** |
А1 |
А2 |
А3 |
В max |
В1 |
H*** max |
H1 |
Н2 |
H3 |
d |
d1 |
a |
h |
|||||
|
0° |
45° |
90°, 270° |
135°, 315° |
0° |
45° |
90° |
||||||||||||||
|
ВР-80-75-2,5 |
56 |
460 |
412 |
427 |
542 |
271 |
189 |
163 |
510 |
177 |
509 |
640 |
576 |
306 |
224 |
203 |
250 |
289 |
175 |
194 |
|
63 |
460 |
412 |
427 |
542 |
271 |
189 |
163 |
510 |
177 |
516 |
647 |
583 |
313 |
224 |
203 |
250 |
289 |
175 |
194 |
|
|
71 |
460 |
412 |
427 |
542 |
271 |
189 |
163 |
510 |
177 |
524 |
655 |
591 |
321 |
224 |
203 |
250 |
289 |
175 |
194 |
|
|
ВР-80-75-3,15 |
63 |
572 |
514 |
520 |
664 |
315 |
237 |
205 |
552 |
202 |
627 |
792 |
718 |
403 |
278 |
244 |
315 |
349 |
220,5 |
240,5 |
|
80 |
572 |
514 |
520 |
664 |
315 |
237 |
205 |
569 |
202 |
644 |
809 |
735 |
420 |
278 |
244 |
315 |
349 |
220,5 |
240,5 |
|
|
ВР-80-75-4,0 |
63 |
721 |
656 |
650 |
834 |
401 |
301 |
258 |
638 |
232 |
766 |
974 |
889 |
469 |
358 |
297 |
400 |
434 |
280 |
300 |
|
71 |
721 |
656 |
650 |
834 |
401 |
301 |
258 |
643 |
232 |
774 |
982 |
897 |
477 |
358 |
297 |
400 |
434 |
280 |
300 |
|
|
80 |
721 |
656 |
650 |
834 |
401 |
301 |
258 |
655 |
232 |
783 |
991 |
906 |
486 |
358 |
297 |
400 |
434 |
280 |
300 |
|
|
100 |
721 |
656 |
650 |
834 |
401 |
301 |
258 |
722 |
232 |
803 |
1010 |
926 |
506 |
358 |
297 |
400 |
434 |
280 |
300 |
|
|
112 |
721 |
656 |
650 |
834 |
401 |
301 |
258 |
739 |
232 |
815 |
1022 |
938 |
518 |
358 |
297 |
400 |
434 |
280 |
300 |
|
|
ВР-80-75-5,0 |
71 |
896 |
818 |
798 |
1037 |
501 |
376 |
396 |
752 |
269 |
930 |
1097 |
1091 |
561 |
440 |
359 |
500 |
534 |
350 |
379 |
|
80 |
896 |
818 |
798 |
1037 |
501 |
376 |
396 |
762 |
269 |
939 |
1106 |
1100 |
720 |
440 |
359 |
500 |
534 |
350 |
379 |
|
|
90 |
896 |
818 |
798 |
1037 |
501 |
376 |
396 |
771 |
269 |
949 |
1116 |
1110 |
730 |
440 |
359 |
500 |
534 |
350 |
379 |
|
|
100 |
896 |
818 |
798 |
1037 |
501 |
376 |
396 |
781 |
269 |
959 |
1126 |
1120 |
590 |
440 |
359 |
500 |
534 |
350 |
379 |
|
|
ВР-80-75-6,3 |
100 |
1123 |
1026 |
993 |
1288 |
631 |
476 |
404 |
1061 |
343 |
1141 |
1478 |
1360 |
700 |
554 |
441 |
630 |
665 |
441 |
470 |
|
112 |
1123 |
1026 |
993 |
1288 |
631 |
476 |
404 |
1073 |
343 |
1153 |
1490 |
1372 |
712 |
554 |
441 |
630 |
665 |
441 |
470 |
|
|
132 |
1123 |
1026 |
993 |
1288 |
631 |
476 |
404 |
1093 |
343 |
1173 |
1510 |
1392 |
732 |
554 |
441 |
630 |
665 |
441 |
470 |
|
|
ВР-80-75-8,0 |
132-180 |
1421 |
1303 |
1248 |
1618 |
828 |
602 |
520 |
1385 |
434 |
1542 |
1960 |
1314 |
995 |
702 |
547 |
800 |
829 |
560 |
589 |
|
ВР-80-75-10,0 |
160-200 |
1799 |
1655 |
1570 |
2040 |
1034 |
765 |
650 |
1544 |
506 |
2035 |
2567 |
2389 |
1355 |
890 |
680 |
1000 |
1030 |
700 |
740 |
* АИМЛ для вентиляторов во взрывозащищенном исполнении (В1,
В2, ВК1, В1Ж2, ВК1Ж2).
** Размер, зависящий от положения корпуса вентилятора.
*** Максимальная высота при различных положениях корпуса
вентилятора (0°, 45°, 90°).
Габаритные размеры Bmax и H1max соответственно зависят
от устанавливаемого двигателя. Габаритный размер Hmax зависит от положения
корпуса и устанавливаемого двигателя.
Габаритные и присоединительные размеры основания рамы вентиляторов ВР-80-75

|
№ вентилятора |
Габарит электродвигателей АИР/АИМЛ* |
А |
В |
C |
D |
Е |
F |
K |
L |
M |
n |
|
ВР-80-75-2,5 |
56-71 |
418 |
292 |
316 |
- |
- |
20 |
90 |
30 |
8,5 |
8 |
|
ВР-80-75-3,15 |
63-80 |
445 |
254 |
278 |
- |
- |
20 |
90 |
30 |
9 |
8 |
|
ВР-80-75-4,0 |
63-112 |
570 |
290 |
314 |
- |
- |
20 |
163 |
30 |
8,5 |
8 |
|
ВР-80-75-5,0 |
71-100 |
700 |
385 |
435 |
10 |
240 |
100 |
240 |
- |
- |
6 |
|
ВР-80-75-6,3 |
100-132 |
854 |
486 |
546 |
10 |
325 |
100 |
325 |
- |
- |
6 |
|
ВР-80-75-8,0 |
132-160 |
1088 |
586 |
646 |
12 |
265 |
268 |
265 |
- |
- |
6 |
|
180 |
1307 |
575 |
646 |
12 |
375 |
268 |
375 |
- |
- |
6 |
|
|
ВР-80-75-10,0 |
160-200 |
1330 |
840 |
900 |
12 |
385 |
280 |
385 |
- |
- |
6 |
* АИМЛ для вентиляторов во взрывозащищенном исполнении (В1, В2, ВК1, В1Ж2, ВК1Ж2).
Технические характеристики
|
Наименование |
Габарит электродвигателей АИР/АИМЛ** |
N, кВт |
n, об/мин |
Ток при 380В, А |
Масса max, кг*** |
Виброопора тип ЕС (А) |
||
|
В1, В2, К1, ВК1 |
Ж2, К1Ж2, В1Ж2, ВК1Ж2 |
Кол-во |
Тип |
|||||
|
ВР-80-75-2,5-К1*-РН-0,12/1500/220-380 |
56 |
0,12 |
1310 |
0,49 |
15,1 |
16,6 |
4 |
20*25(А) М6 |
|
ВР-80-75-2,5-К1*-РН-0,18/1500/220-380 |
56 |
0,18 |
1310 |
0,67 |
14,9 |
16,4 |
4 |
20*25(А) М6 |
|
ВР-80-75-2,5-К1*-РН-0,25/1500/220-380 |
63 |
0,25 |
1340 |
0,87 |
16,3 |
17,8 |
4 |
20*25(А) М6 |
|
ВР-80-75-2,5-К1*-РН-0,55/3000/220-380 |
63 |
0,55 |
2790 |
1,38 |
18,7 |
20,2 |
4 |
20*25(А) М6 |
|
ВР-80-75-2,5-К1*-РН-0,75/3000/220-380 |
71 |
0,75 |
2840 |
1,83 |
19,7 |
21,2 |
4 |
20*25(А) М6 |
|
ВР-80-75-3,15-К1*-РН-0,25/1500/220-380 |
63 |
0,25 |
1340 |
0,87 |
25,7 |
28,3 |
4 |
20*25(А) М6 |
|
ВР-80-75-3,15-К1*-РН-0,37/1500/220-380 |
63 |
0,37 |
1340 |
1,18 |
26,4 |
29,0 |
4 |
20*25(А) М6 |
|
ВР-80-75-3,15-К1*-РН-1,5/3000/220-380 |
80 |
1,5 |
2850 |
3,46 |
35,1 |
37,67 |
4 |
20*25(А) М6 |
|
ВР-80-75-3,15-К1*-РН-2,2/3000/220-380 |
80 |
2,2 |
2855 |
4,85 |
39,1 |
41,7 |
4 |
20*25(А) М6 |
|
ВР-80-75-4,0-К1*-РН-0,25/1000/220-380 |
63 |
0,25 |
870 |
0,98 |
40,8 |
44,9 |
4 |
20*25(А) М6 |
|
ВР-80-75-4,0-К1*-РН-0,37/1000/220-380 |
71 |
0,37 |
880 |
1,39 |
44,0 |
48,1 |
4 |
20*25(А) М6 |
|
ВР-80-75-4,0-К1*-РН-0,75/1500/220-380 |
71 |
0,75 |
1390 |
2,11 |
44,3 |
48,4 |
4 |
20*25(А) М6 |
|
ВР-80-75-4,0-К1*-РН-1,1/1500/220-380 |
80 |
1,1 |
1390 |
2,85 |
48,4 |
52,5 |
4 |
20*25(А) М6 |
|
ВР-80-75-4,0-К1*-РН-5,5/3000/220-380 |
100 |
5,5 |
2900 |
11,1 |
69,2 |
73,3 |
6 |
20*25(А) М6 |
|
ВР-80-75-4,0-К1*-РН-7,5/3000/220-380 |
112 |
7,5 |
2895 |
14,9 |
77,7 |
81,8 |
6 |
20*15(А) М6 |
|
ВР-80-75-5,0-К1*-РН-0,55/1000/220-380 |
71 |
0,55 |
880 |
1,79 |
66,6 |
73,3 |
6 |
20*25(А) М6 |
|
ВР-80-75-5,0-К1*-РН-0,75/1000/220-380 |
80 |
0,75 |
905 |
2,3 |
70 |
76,7 |
6 |
20*25(А) М6 |
|
ВР-80-75-5,0-К1*-РН-2,2/1500/220-380 |
90 |
2,2 |
1410 |
5,3 |
87,3 |
94 |
6 |
20*15(А) М6 |
|
ВР-80-75-5,0-К1*-РН-3,0/1500/220-380 |
100 |
3,0 |
1410 |
6,8 |
88,3 |
95 |
6 |
20*15(А) М6 |
|
ВР-80-75-6,3-К1*-РН-2,2/1000/220-380 |
100 |
2,2 |
935 |
5,6 |
120 |
132 |
6 |
25*20(А) М6 |
|
ВР-80-75-6,3-К1*-РН-3,0/1000/220-380 |
112 |
3,0 |
960 |
7,64 |
135 |
147 |
6 |
25*20(А) М6 |
|
ВР-80-75-6,3-К1*-РН-5,5/1500/220-380 |
112 |
5,5 |
1440 |
11,7 |
140 |
152 |
6 |
25*20(А) М6 |
|
ВР-80-75-6,3-К1*-РН-7,5/1500/380-660 |
132 |
7,5 |
1450 |
15,71 |
162,5 |
174,5 |
6 |
30*30(А) М8 |
|
ВР-80-75-8,0-К1*-РН-5,5/1000/380-660 |
132 |
5,5 |
960 |
12,9 |
215 |
236,5 |
6 |
30*15 (A) М8 |
|
ВР-80-75-8,0-К1*-РН-7,5/1000/380-660 |
132 |
7,5 |
970 |
17,2 |
232 |
254 |
6 |
30*15 (A) М8 |
|
ВР-80-75-8,0-К1*-РН-11,0/1000/380-660 |
160 |
11,0 |
970 |
24,5 |
278 |
299,5 |
6 |
40*40 (A) М8 |
|
ВР-80-75-8,0-К1*-РН-18,5/1500/380-660 |
160 |
18,5 |
1470 |
36,3 |
294 |
315 |
6 |
40*30 (A) М10 |
|
ВР-80-75-8,0-К1*-РН-22,0/1500/380-660 |
180 |
22,0 |
1470 |
43,2 |
319 |
341 |
6 |
40*30 (A) М10 |
|
ВР-80-75-8,0-К1*-РН-30,0/1500/380-660 |
180 |
30,0 |
1470 |
57,6 |
319 |
341 |
6 |
40*30 (A) М10 |
|
ВР-80-75-10,0-В1*-РН-7,5/750/380-660 |
160 |
7,5 |
720 |
18,17 |
394 |
433 |
6 |
50*50 (A) М10 |
|
ВР-80-75-10,0-В1*-РН-11,0/750/380-660 |
160 |
11,0 |
730 |
26 |
414 |
453 |
6 |
50*50 (A) М10 |
|
ВР-80-75-10,0-В1*-РН-15,0/1000/380-660 |
160 |
15,0 |
970 |
31,6 |
416 |
455 |
6 |
50*50 (A) М10 |
|
ВР-80-75-10,0-В1*-РН-18,5/1000/380-660 |
180 |
18,5 |
980 |
38,6 |
382 |
421 |
6 |
50*50 (A) М10 |
|
ВР-80-75-10,0-В1*-РН-22,0/1000/380-660 |
200 |
22,0 |
980 |
44,7 |
495 |
534 |
6 |
50*40 (A) М10 |
|
ВР-80-75-10,0-В1*-РН-30,0/1000/380-660 |
200 |
30,0 |
980 |
60 |
495 |
534 |
6 |
50*40 (A) М10 |
* В этом месте необходимо указать исполнение вентилятора: Ж2, К1, К1Ж2, В1, В2, ВК1, В1Ж2, ВК1Ж2.
** АИМЛ для вентиляторов во взрывозащищенном исполнении (В1, В2, ВК1, В1Ж2, ВК1Ж2).
*** Вентиляторы исполнений В1, В2, ВК1, В1Ж2, ВК1Ж2 с двигателями серии АИМЛ56 (0,12 кВт и 0,18 кВт) не изготавливаются.
Шумовые характеристики
|
Наименование |
Уровень звуковой мощности, дБ в октавных полосах частот, Гц |
Общий, дБа |
|||||||
|
63 |
125 |
250 |
500 |
1000 |
2000 |
4000 |
8000 |
||
|
ВР-80-75-2,5-К1*-РН-0,12/1500/220-380 |
51 |
56 |
63 |
57 |
54 |
50 |
47 |
43 |
66 |
|
ВР-80-75-2,5-К1*-РН-0,18/1500/220-380 |
51 |
56 |
63 |
57 |
54 |
50 |
47 |
43 |
66 |
|
ВР-80-75-2,5-К1*-РН-0,25/1500/220-380 |
51 |
56 |
63 |
57 |
54 |
50 |
47 |
43 |
66 |
|
ВР-80-75-2,5-К1*-РН-0,55/3000/220-380 |
70 |
75 |
82 |
76 |
73 |
69 |
66 |
62 |
85 |
|
ВР-80-75-2,5-К1*-РН-0,75/3000/220-380 |
70 |
75 |
82 |
76 |
73 |
69 |
66 |
62 |
85 |
|
ВР-80-75-3,15-К1*-РН-0,25/1500/220-380 |
60 |
65 |
72 |
66 |
63 |
59 |
56 |
52 |
75 |
|
ВР-80-75-3,15-К1*-РН-0,37/1500/220-380 |
60 |
65 |
72 |
66 |
63 |
59 |
56 |
52 |
75 |
|
ВР-80-75-3,15-К1*-РН-1,5/3000/220-380 |
80 |
85 |
92 |
86 |
83 |
79 |
76 |
72 |
95 |
|
ВР-80-75-3,15-К1*-РН-2,2/3000/220-380 |
80 |
85 |
92 |
86 |
83 |
79 |
76 |
72 |
95 |
|
ВР-80-75-4,0-К1*-РН-0,25/1000/220-380 |
58 |
63 |
70 |
64 |
61 |
57 |
54 |
50 |
73 |
|
ВР-80-75-4,0-К1*-РН-0,37/1000/220-380 |
58 |
63 |
70 |
64 |
61 |
57 |
54 |
50 |
73 |
|
ВР-80-75-4,0-К1*-РН-0,75/1500/220-380 |
70 |
74 |
81 |
75 |
73 |
69 |
66 |
61 |
84 |
|
ВР-80-75-4,0-К1*-РН-1,1/1500/220-380 |
70 |
74 |
81 |
75 |
73 |
69 |
66 |
61 |
84 |
|
ВР-80-75-4,0-К1*-РН-5,5/3000/220-380 |
89 |
93 |
100 |
94 |
92 |
88 |
85 |
80 |
103 |
|
ВР-80-75-4,0-К1*-РН-7,5/3000/220-380 |
89 |
93 |
100 |
94 |
92 |
88 |
85 |
80 |
103 |
|
ВР-80-75-5,0-К1*-РН-0,55/1000/220-380 |
66 |
71 |
78 |
72 |
69 |
65 |
62 |
58 |
81 |
|
ВР-80-75-5,0-К1*-РН-0,75/1000/220-380 |
66 |
71 |
78 |
72 |
69 |
65 |
62 |
58 |
81 |
|
ВР-80-75-5,0-К1*-РН-2,2/1500/220-380 |
78 |
82 |
89 |
83 |
81 |
77 |
74 |
69 |
92 |
|
ВР-80-75-5,0-К1*-РН-3,0/1500/220-380 |
78 |
82 |
89 |
83 |
81 |
77 |
74 |
69 |
92 |
|
ВР-80-75-6,3-К1*-РН-2,2/1000/220-380 |
75 |
80 |
87 |
81 |
78 |
74 |
71 |
67 |
90 |
|
ВР-80-75-6,3-К1*-РН-3,0/1000/220-380 |
75 |
80 |
87 |
81 |
78 |
74 |
71 |
67 |
90 |
|
ВР-80-75-6,3-К1*-РН-5,5/1500/220-380 |
87 |
91 |
98 |
92 |
90 |
86 |
83 |
78 |
101 |
|
ВР-80-75-6,3-К1*-РН-7,5/1500/380-660 |
87 |
91 |
98 |
92 |
90 |
86 |
83 |
78 |
101 |
|
ВР-80-75-8,0-К1*-РН-5,5/1000/380-660 |
88 |
91 |
99 |
92 |
90 |
88 |
80 |
71 |
96 |
|
ВР-80-75-8,0-К1*-РН-7,5/1000/380-660 |
88 |
91 |
99 |
92 |
90 |
88 |
80 |
71 |
96 |
|
ВР-80-75-8,0-К1*-РН-11,0/1000/380-660 |
88 |
91 |
99 |
92 |
90 |
88 |
80 |
71 |
96 |
|
ВР-80-75-8,0-К1*-РН-18,5/1500/380-660 |
90 |
93 |
103 |
95 |
93 |
92 |
83 |
75 |
99 |
|
ВР-80-75-8,0-К1*-РН-22,0/1500/380-660 |
90 |
93 |
103 |
95 |
93 |
92 |
83 |
75 |
99 |
|
ВР-80-75-8,0-К1*-РН-30,0/1500/380-660 |
90 |
93 |
103 |
95 |
93 |
92 |
83 |
75 |
99 |
|
ВР-80-75-10,0-В1*-РН-7,5/750/380-660 |
91 |
94 |
90 |
88 |
85 |
80 |
73 |
64 |
90 |
|
ВР-80-75-10,0-В1*-РН-11,0/750/380-660 |
91 |
94 |
90 |
88 |
85 |
80 |
73 |
64 |
90 |
|
ВР-80-75-10,0-В1*-РН-15,0/1000/380-660 |
92 |
95 |
100 |
96 |
94 |
91 |
86 |
79 |
99 |
|
ВР-80-75-10,0-В1*-РН-18,5/1000/380-660 |
92 |
95 |
100 |
96 |
94 |
91 |
86 |
79 |
99 |
|
ВР-80-75-10,0-В1*-РН-22,0/1000/380-660 |
92 |
95 |
100 |
96 |
94 |
91 |
86 |
79 |
99 |
|
ВР-80-75-10,0-В1*-РН-30,0/1000/380-660 |
92 |
95 |
100 |
96 |
94 |
91 |
86 |
79 |
99 |
* В этом месте необходимо указать исполнение вентилятора: Ж2, К1, К1Ж2, В1, В2, ВК1, В1Ж2, ВК1Ж2.
Электрические схемы подключения вентиляторов в сеть 380

* В вентиляторах с номинальным напряжением Δ/Y 380В/660В предусмотрена возможность запуска пониженным напряжением по схеме Y-Δ.
Рекомендуемая схема подключения зависит от исполнения двигателя. Для получения более подробной информации по подключению, обратитесь в отдел технической поддержки.
Не представленные в наличии модели доступны к поставке под заказ
Оповестить о поступлении
Всю необходимую информацию также можно получить по телефону «горячей линии»
+ 7 800 200 93 96или по телефону
+7 800 505 08 67 получить консультацию
